GARTENUMGESTALTUNG 03
Eine komplette Neugestaltung duften wir kürzlich abschliessen und feierlich einweihen. Der schön gelegene Garten verfügte bereits über einen Pool, der leicht verändert, saniert mit Holz eingekleidet wurde.
BEWÄSSERUNG
Während heisser Sommertage ist die korrekte Bewässerung Ihres Gartens besonders wichtig. Erfahren Sie mehr dazu, wie Sie mit Bewässerungssystemen Ihren Garten schön grün halten.
RASENPFLEGE
Die aktuelle Hitze macht nicht nur uns Menschen zu schaffen, auch die Natur hat teilweise unter den hohen Temperaturen zu leiden. So ist es auch für unsere Rasenflächen nicht einfach nach den letzten Wochen und Monaten.
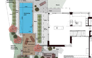
NEUER NATURPOOL 03
Für einen bestehenden Garten wurde die Integration eines neuen Naturpools gewünscht. Mit bester Aussicht entstand so eine tolle Anlage mit der passenden Umgebungsgestaltung.
SONNENSCHIRME
Die bewährten Sonnenschirme der Firma Glatz sind bei den rekordhohen Temperaturen genau richtig. Qualitativ hochstehend und mit schlichtem Design überzeugen die Produkte des Schweizer Herstellers zu 100%.
ERSTELLUNG NATURPOOL 02
Noch rechtzeitig auf den bevorstehenden Sommer dürfen wir aktuell eine Naturpool-Anlage erstellen. Wunderschön gelegen sind unsere Fachleute daran, eine Top-Anlage mit den neusten technischen Komponenten zu erstellen.
GARTENUMGESTALTUNG 02
Rund um eine bestehende Poolanlage durften wir einen bestehenden Garten neu gestalten. Diverse Sitzplätze und Verweilzonen wurden neu angelegt, harmonische Sichtschutzwände integriert und die passenden neuen Beläge verlegt.
HECKEN SCHNEIDEN
Damit eine Hecke optimal gedeiht und ihren Zweck vom dichten Sichtschutz wie gewünscht erfüllt, sollte sie am besten zweimal jährlich geschnitten werden. Das erste Mal idealerweise nach dem Hauptaustrieb im Frühsommer, also ca. im Juni.
GRILLS UND AUSSENKÜCHEN
Für die Zubereitung kulinarischer Gaumenfreuden im Garten gibt es heute weit mehr als den klassischen Gasgrill. Die Möglichkeiten zum Grillieren oder Kochen sind schier unbegrenzt. Entdecken Sie unser breites Sortiment in der Gartenarena.
GARTENUMGESTALTUNG
Bei einer Parterrewohnung, welche über der Tiefgarage liegt, wurde eine komplette Umgestaltung der Umgebung gewünscht. Integriert werden sollen eine Pergola und ein Wasserspiel als Blickfang.
GEWA 2019
Die GEWA 2019 gehört bereits wieder der Vergangenheit an und mit ihr liegt ein spannendes Wochenende hinter uns. Wir dürfen auf zahlreiche interessante Gespräche und Besuche zurückblicken.
TOSKANA KUNDENREISE
Besuchen Sie mit uns vom 12. - 15. September 2019 in einer aussergewöhnlichen Tour unsere Baumschule, schöne Villen mit traumhaften Gärten und grossartige Weingüter in der Toskana.












